Mehrfamilienhaus

Bottmingen MFH

Typische Wohnkuben raffiniert elegant.

Projektdaten

BGF 3.350 m²
Bauzeit 2017–2018
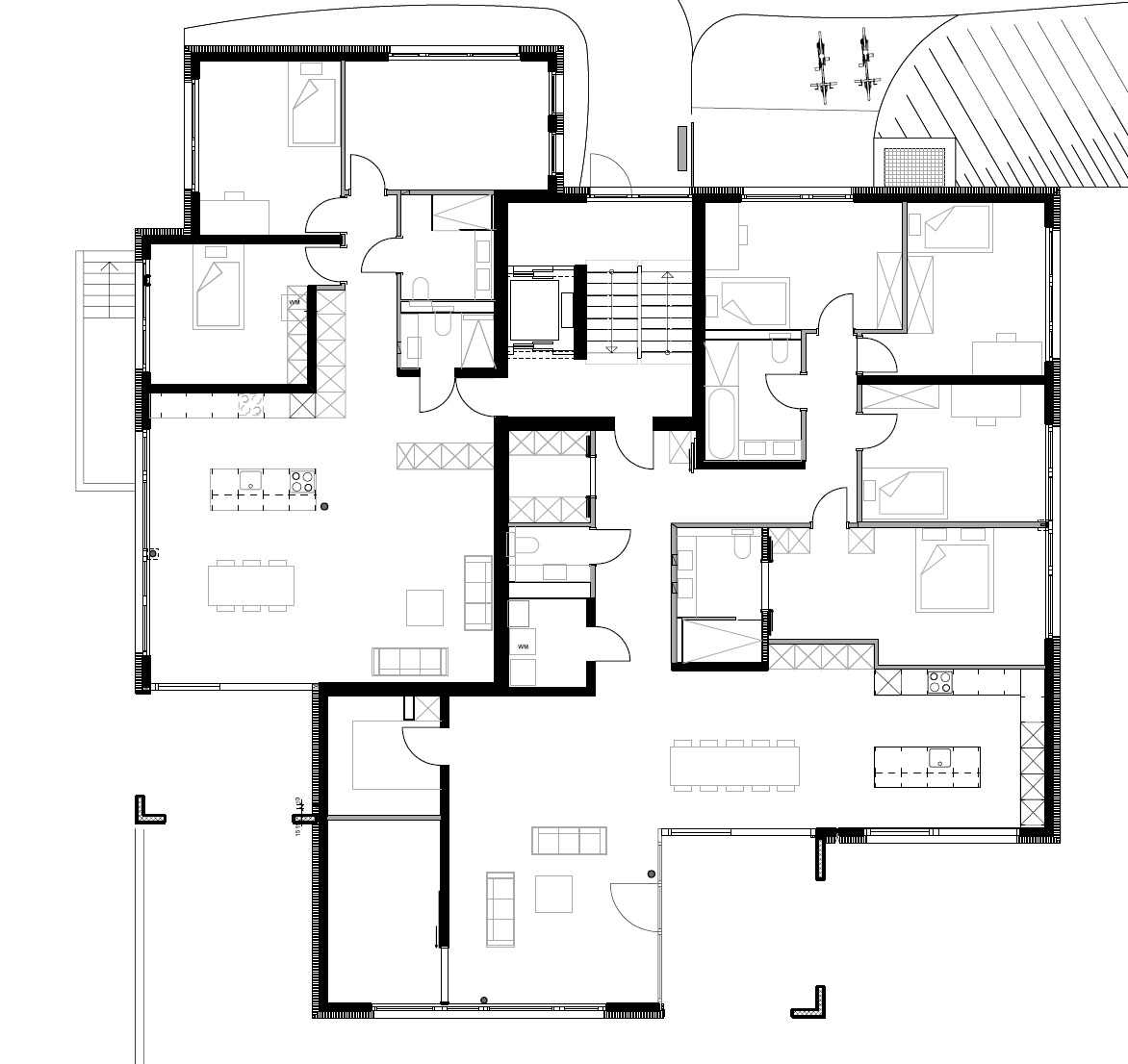
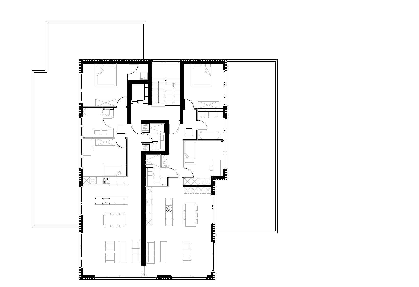
Einheiten 13 Wohnungen 1 AEH
Ort Bottmingen, Schweiz
Auf einem innerdörflichen Grundstück, das mit alten Scheunen bebaut war, sollte in möglichst kompakter Form rentabler Wohnraum entstehen.
Ansicht Südwesten

Eleganz trotz Effizienz

Mit einer entsprechenden Gestaltung der Fenster und den grosszügigen Öffnungen, sowie einer gekonnten Farb- und Materialwahl strahlen die Wohnungen, obwohl kompakt und günstig, eine Eleganz aus.

Die klare Formensprache — kubische Volumen, Flachdächer, grossflächige Verglasungen — steht im Dialog mit dem dörflichen Kontext. .

Fenster Detailplanung

Feinschliff zur Ausführung

Die Fassade wurd von der Baueingabe durch mich nochmals überarbeitet, damit ein einheitliches konsistentes und elegantes Erscheinungsbild gegeben ist.

Die auffallend grossen Fassadenöffnungen, die das Gebäude schon fast wie ein Skelettbau wirken liesen, verlangten nach einen schlüssigen Konzept der Fenstergestaltung. Entscheident war neben dem Design die praktikable Handhabung – Öffenbarkeit und Reinigung.

Durch überbreite Fensterrahmen konnte man ein lebendiges Spiel an Struktur in den grossen Öffnungen erreichen.
Bottmingen Axonometrischer Schnitt durch den Treppenkern Lichtkonzept — Treppenhaus

Nicht alltäglicher Charme

Die Treppenhäuser erhielten eine besondere Gestaltung. Dort wo sich die Treppenläufe um den Aufzugsschacht winden, wird dieser durch entsprechend gesetzte Lichtquellen und Materialität als eigenständiges Objekt betont.

Im zweiläufigen Treppenhaus wird das durchlaufende Webnet wie ein Vorhang gesehen und entsprechend gestaltet — ein skulpturaler Moment im alltäglichen Durchgangsraum.

Überarbeitung Fassadenkonzept, Werkplanung, Ausführungsplanung, Ausschreibung, Begleitung Bauleitung. Bis zum Rohbau begleitete ich die Bauausführung und war bei Problemen die Ansprechperson.