Wettbewerbsgewinn

Kindertagesstätte
Stuttgart Rot

Form follows Funktion. Kinder die aus Räumen ins Freie treten.

Projektdaten

BGF 2.200 m²
BRI 6.800 m³
Baukosten 4,5 Mio EUR (KG 2-7)
Bauzeit 2017–2018
Ort Stuttgart, Deutschland
Der Entwurf besticht durch seine prägnante Figur und dem lebendigen Innenraum. Trotz seiner besonderen Form pass sich das gefaltete Dach elegant in die Umgebung mit Satteldächern ein.
Modell — Ansicht von Süden

Nicht auftrumpfen, sondern einfügen

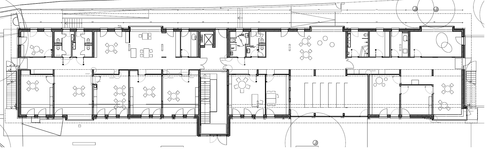
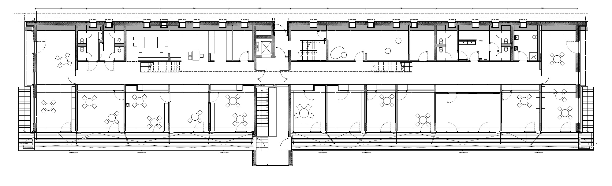
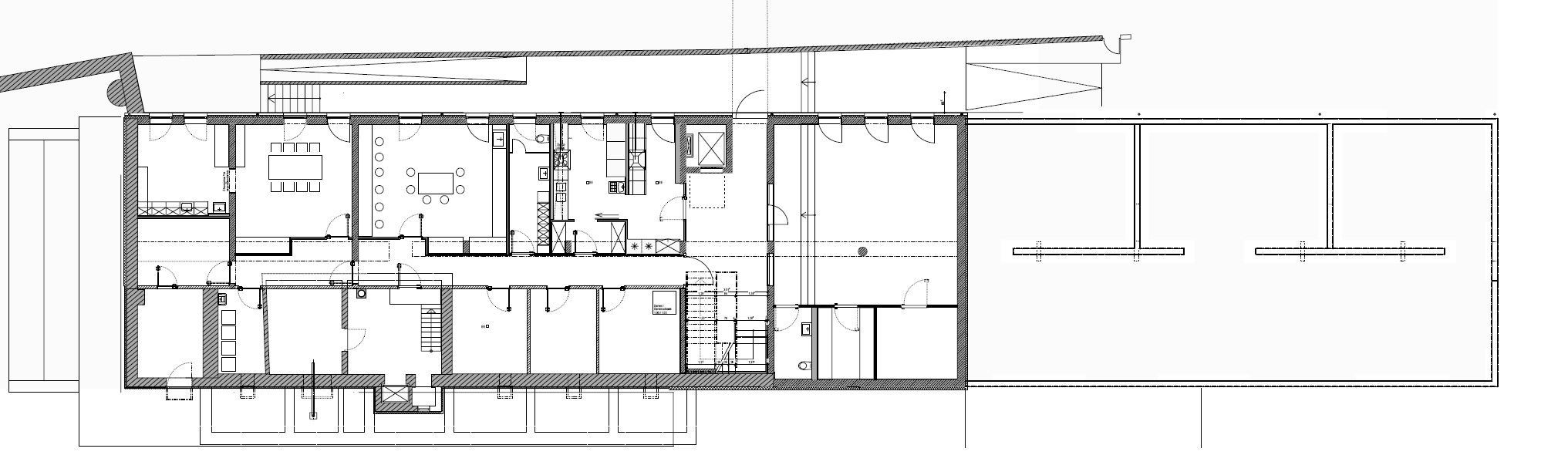
Die Kindertagesstätte in Stuttgart Rot hat aufgrund der ungewöhnlichen Architektur den Wettbewerb gewonnen. Der Grundriss des Entwurfs setzt das Einsteinkonzept konsequent um. Offene und geschlossene Gruppenräume wechseln sich ab und verbinden sich über den Flur zu einem lebendigen Innenraum. Das gefaltete Dach passt sich in die Umgebung mit Satteldächern ein.

Die Idee der Form entspicht einer Hand in U-Form, die die Räume im Obergeschoss hält.

Der Entwurf bestimmt das Detail

Der Entwurfsgedanke der fassenden Hand, musste mit Feingefühl bei den Details in der Fassade umgesetzt werden. Material, Farbgebung und Ausgestaltung der Ecken im Detail spielten eine dabei eine grosse Rolle.
Das Bild zeigt einen Zwischenstand bei der die Komplexität des Traufsanschluss zu sehen ist. Die Kanten müssen genau aufeinander passen, um den schönen Fassadenabschluss zu erreichen.

In diesem Projekt bestätigte sich wieder, dass die Ausführungsplanung einen erheblichen Einfluss auf die Umsetzung des Entwurfs hat.

Die Ausführung bestimmt den Entwurf

Ursprünglich waren Standard Oberlichtverglasungen in den Räumen geplant, die Licht in die Flure brachten. Im Rohbau erkannte ich jedoch die schöne, regelmässige Stützenmuster. Um diese zu unterstreichen wurde das Konzept der senkrechten Glasschlitze geboren.

Durch grosszügig verglaste Türen die bis zur Decke reichten wurde die Rasterung der Stützen betont.

In diesem Projekt bestätigte sich wieder, dass die Ausführungsplanung einen erheblichen Einfluss auf die Umsetzung des Entwurfs haben kann.

Werkplanung, Ausschreibung und Objektüberwachung — vom Entwurfsgedanken bis ins gebaute Detail. Abstimmung mit Firmen, Bauphysik und Statik..